• +374 (11) 580606
  • info@cost.am
  • Երևան, Ազատություն

  • Ազատության պողոտա 24/15 հասցեում՝ ապահովելով հարմար մուտք և ելք բոլոր ուղղություններով։

  • 2026

  • Business park-ը շահագործման է հանձնվելու 2026 թվականի վերջ

  • 2500$

  • Արժեքը՝ 1 քմ - 2.500 ԱՄՆ դոլարին համարժեք ՀՀ դրամ (ներառյալ ԱԱՀ): *Հանձման վիճակը՝ ստյաժկա, տեղադրված դուռը, պատուհանները, միջնապատերը և անցկացված հոսանքը

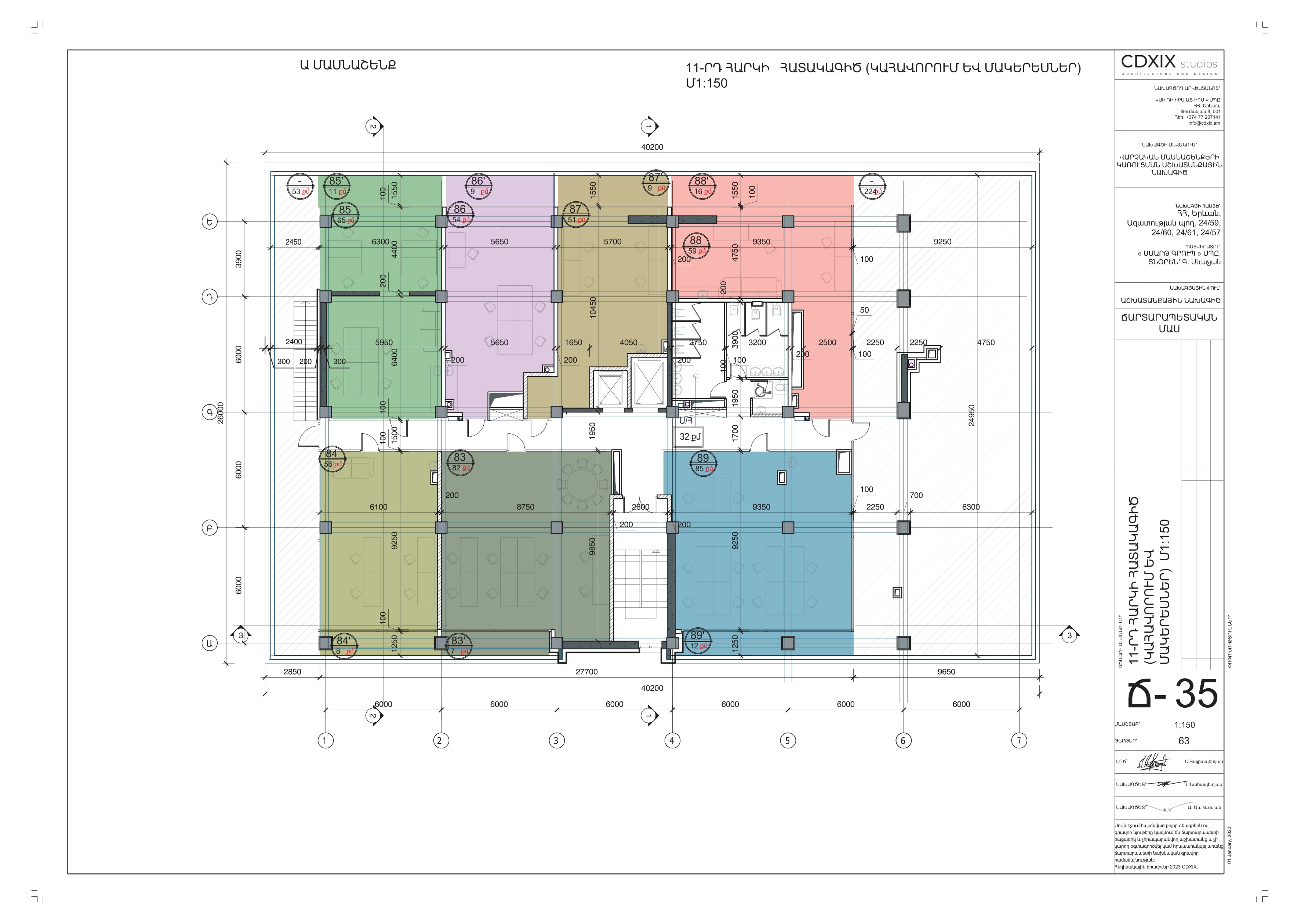
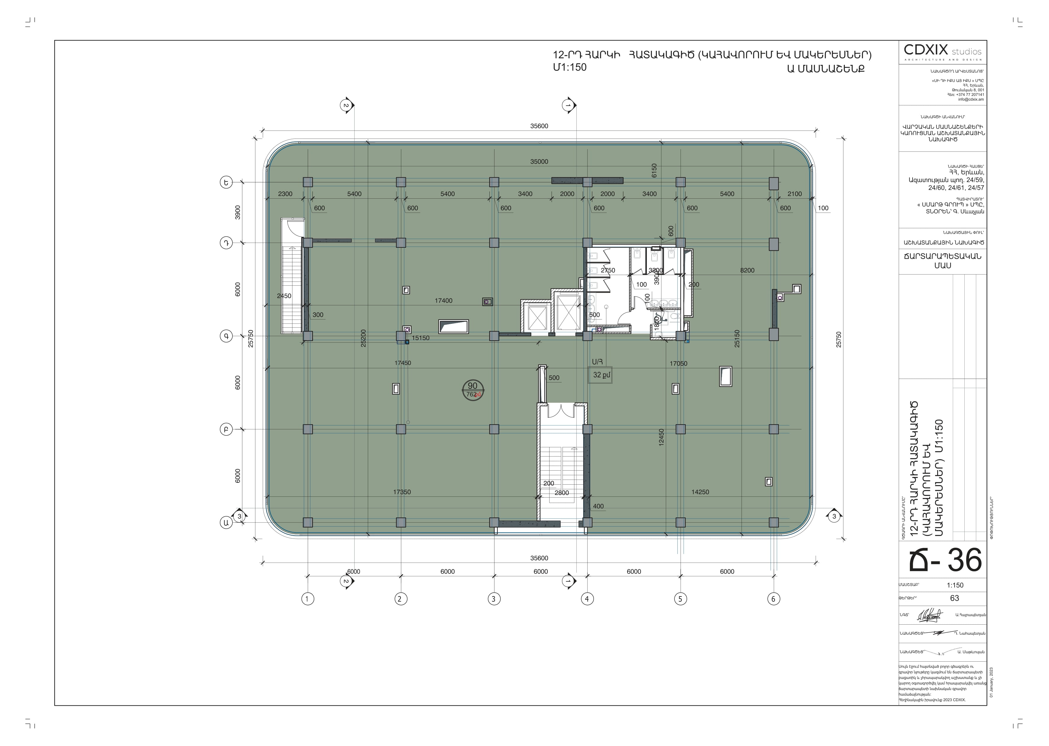
  • սկսած 62 քմ

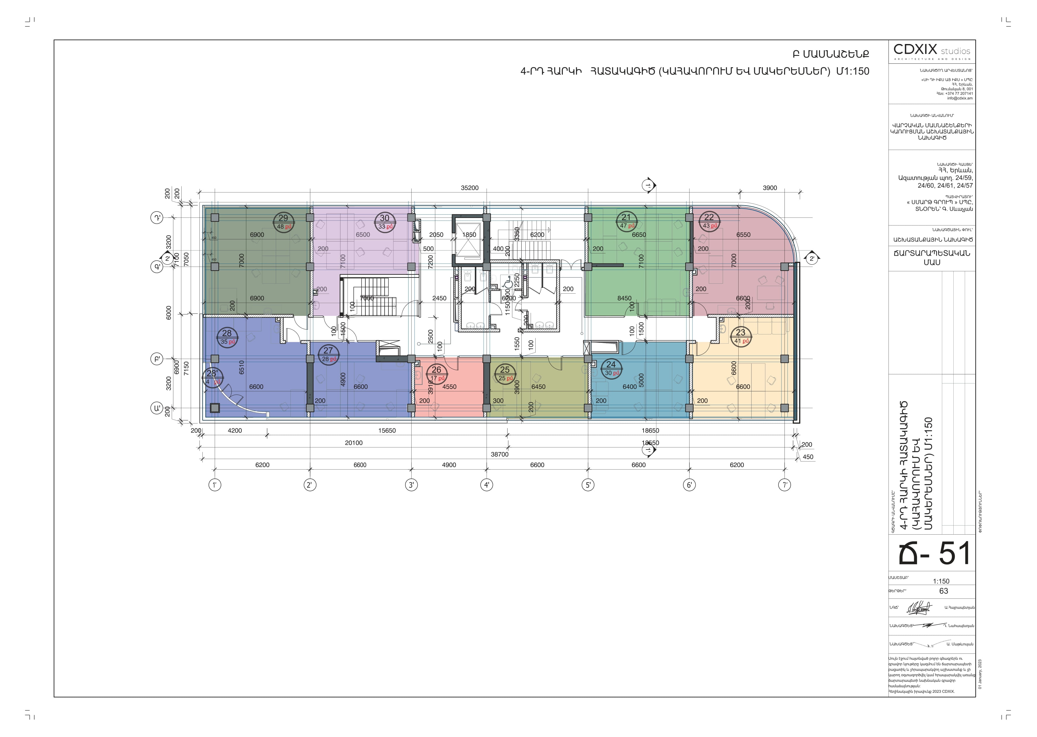
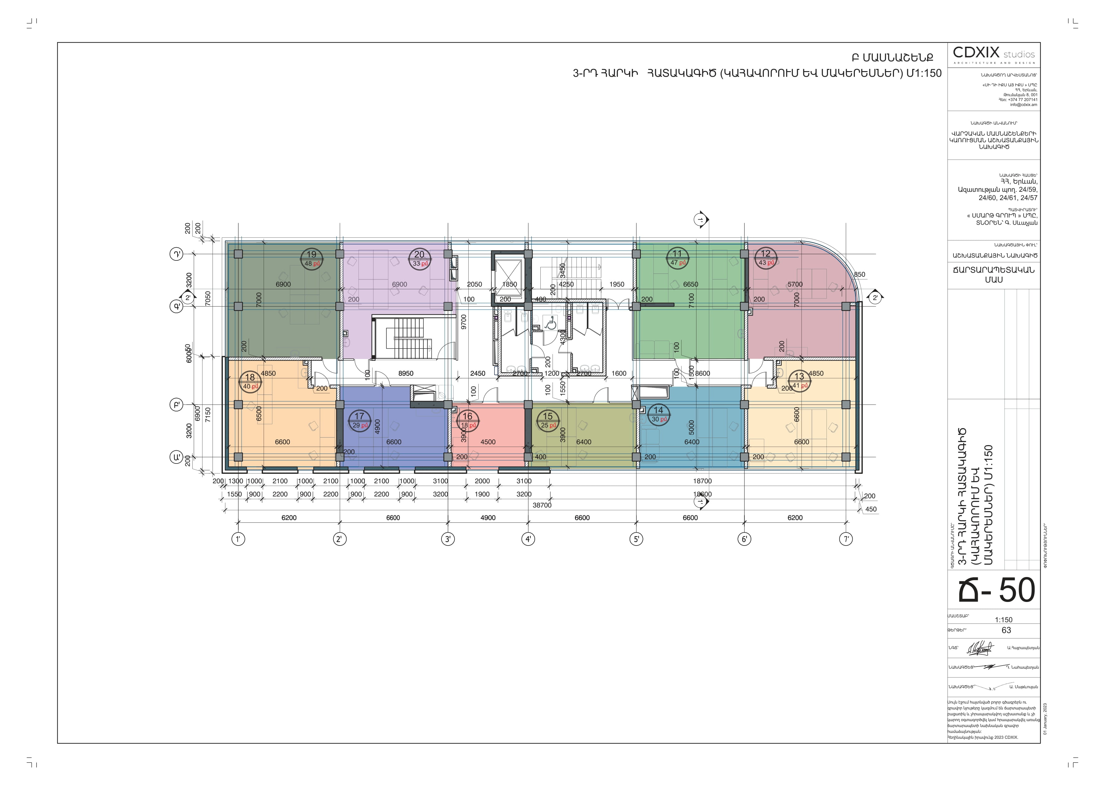
  • կոմերցիոն և գրասենյակային տարածքներ՝ 62-91 քմ մակերեսներով

Business park C Plaza տրամադրում է լիարժեք կոմերցիոն և գրասենյակային տարածքներ՝ ինչպես վաճառքի, այնպես էլ վարձակալության նպատակով։ Գտնվելու վայրը՝ Ազատության պողոտա 24/15 հասցեում՝ ապահովելով հարմար մուտք և ելք բոլոր ուղղություններով։

Մերձակայքում տեղակայված են՝
• Բանկերի մասնաճյուղեր
• ⁠Հասարակական տրանսպորտի կանգառներ՝ տարբեր երթուղիներով
• Սուպերմարկետներ, դեղատներ, բժշկական կենտրոններ
• ⁠Տարբեր խանութներ և սպասարկման կենտրոններ
Այս ամենը ստեղծում է լիարժեք և հարմարավետ միջավայր՝ առանց հեռու գնալու անհրաժեշտության։

Բիզնես Պարկի Տարածքում գործող հարմարություններ՝
• Խորհրդակցությունների սրահներ
• ⁠Սննդի կետեր և սրճարաններ
• ⁠Մարզասրահ և յոգայի սրահ
• ⁠Պադելի կորտեր (շուտով)
• ⁠Ուսումնական հաստատություններ

Ենթակառուցվածքներ և տեխնիկական հնարավորություններ՝
• ⁠Ավտոկայանատեղի
• Կայուն հոսանք և Ջրամատակարարում նաև Ռեզերվային ապահովման հնարավորություն
• ⁠Ջեռուցման և հովացման համակարգ
• ⁠Օդորակման և օդափոխության համակարգ
• ⁠Արտակարգ իրավիճակների համակարգ, Հակահրդեհային պաշտպանություն

Անվտանգություն և սպասարկում՝
• Անվտանգություն, տեսահսկում և պահակային հսկողություն՝ 24/7
• Ընդունարան՝ կազմակերպված այցերի համար
• Մաքուր և բարեկարգ տարածքներ՝ ինչպես ներսում, այնպես էլ դրսում
• ⁠Օպերատիվ արձագանքում վարձակալների կարիքներին, Մասնագիտացված տեխնիկական սպասարկող թիմ
• ⁠Վերանորոգված և պատրաստ օգտագործման տարածքներ՝ ըստ ցանկության
ԲՊ-ն ունի ավելի քան 160 վարձակալ, որոնք ներկայացնում են հայտնի և վստահելի կազմակերպություններ:

Հանձման վիճակը՝ ստյաժկա, տեղադրված դուռը, պատուհանները, միջնապատերը և անցկացված հոսանքը
*Վերանորոգումը’ ըստ ցանկության, կարող ենք նաև մենք անել
*Վաճառվում է միայն 3-րդ և 4-րդ հարկերը

ՏԻՊԱՅԻՆ ՆԱԽԱԳԾԵՐ

  • Զանգահարեք +374 (11) 580606
  • Գրեք info@cost.am
  • Երկուշաբթի-Ուրբաթ 9։30 - 18։00