• +374 (11) 580606
  • info@cost.am
  • Երևան, Լենինգրադյան

  • ԱՅԱՍ բնակելի համալիր նորակառույց բնակելի թաղամասը կառուցվում է Լենինգրադյան 5/4 և 19/11 հասցեում։

  • 2028

  • ԱՅԱՍ բնակելի համալիր 2 մասնաշենքը շահագործման է հանձնվելու 2028 թվականին

  • սկսած 430,000 դրամից

  • 1 քմ-ի արժեքը 430՝000 - 550՝000 ՀՀ դրամ, կախված հարկից, մակերեսից և կողմնարոշումից

  • սկսած 49 քմ

  • 2-4 սենյականոց բնակարաններ՝ 49-100 քմ մակերեսներով

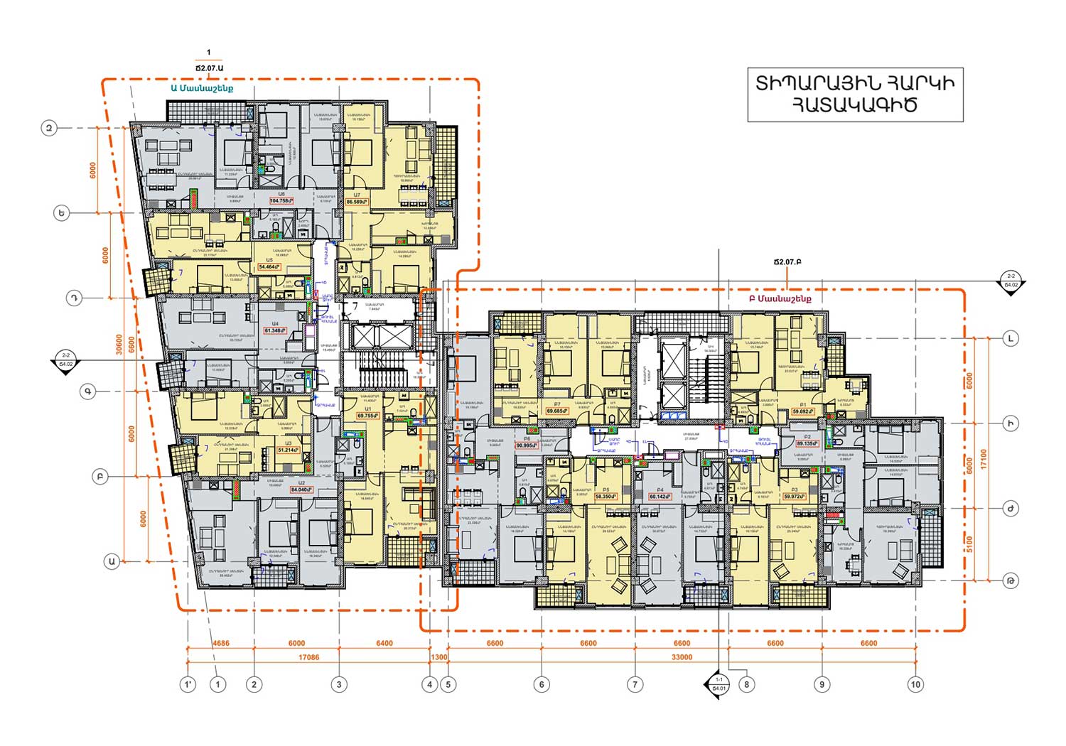
Ձեզ ենք ներկայացնում Լենինգրադյան 5/4 և 19/11 հասցեում կառուցվող «ԱՅԱՍ» բնակելի համալիրը։ Համալիրը ներառում է չորս 16 հարկանի շենքեր, որոնց առաջին երկու հարկերն ունեն հասարակական նշանակություն։

Հողամասն ունի բավական կտրուկ ռելիեֆ՝ ավելի քան 10մ, այդ պատճառով «Բ» մասնաշենքը «Ա»-ի նկատմամբ ավելի բարձրադիր է և ունի 5 ստորգետնյա հարկ, իսկ «Ա» մասնաշենքը՝ 4 ստորգետնյա հարկ: Ստորգետնյա հարկերը նախատեսված են ավտոկայանատեղերի համար։

Նախագիիծն իրենից ներկայացնում է ճարտարապետական արդի լուծումներով կառույցներ, որոնք ունեն ճակատային տեսք բոլոր կողմերից։ Ունի կանաչապատ բակային տարածք՝ հագեցած խաղահրապարակներով և զրուցարաններով։ Երեսվածքը նախատեսված է իրականացնել բնական քարերով, ինչն ավելի կնպաստի բնակարանների ջերմամեկուսացման արդյունավետությանը։

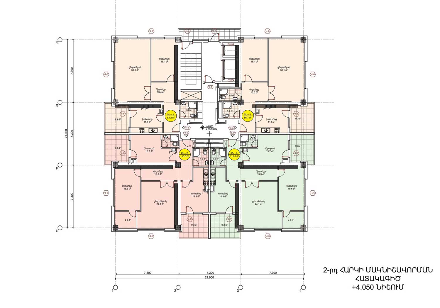
Ըստ էսքիզային նախագծի, նախատետվում է 104 բնակարան յուրաքանչյուր շենքում։ Բնակարանների ճնշող մեծամասնությունը մեկ ննջարանով և 50-60 քմ մակերեսներով են, ինչը դարձնում է ավելի մատչելի և նպատակահարմար նորաստեղծ ընտանիքների, զույգերի և միայնակ անձանց համար։ 15 և 16 հարկերում նախատեսվում են ավելի մեծ, մինչև 100 քմ մակերեսներով, բնակարաններ։

ՏԻՊԱՅԻՆ ՆԱԽԱԳԾԵՐ

  • Զանգահարեք +374 (11) 580606
  • Գրեք info@cost.am
  • Երկուշաբթի-Ուրբաթ 9։30 - 18։00