• +374 (11) 580606
  • info@cost.am
  • Երևան, Ավան

  • Երեք վարչական շրջանների հանգույցում՝ Խուդյակով 1/8՝ Բուսաբանական այգուն հանդիպակաց։

  • ԱՎԱՐՏՎԱԾ

  • «Գրին Վյու» բնակելի համալիրը շահագործման է հանձնվել։

  • սկսած 491`000 դրամից

  • 1 քմ-ի արժեքը 491՝000 - 641՝000 ՀՀ դրամ, կախված հարկից, մակերեսից և կողմնարոշումից։

  • սկսած 77 քմ

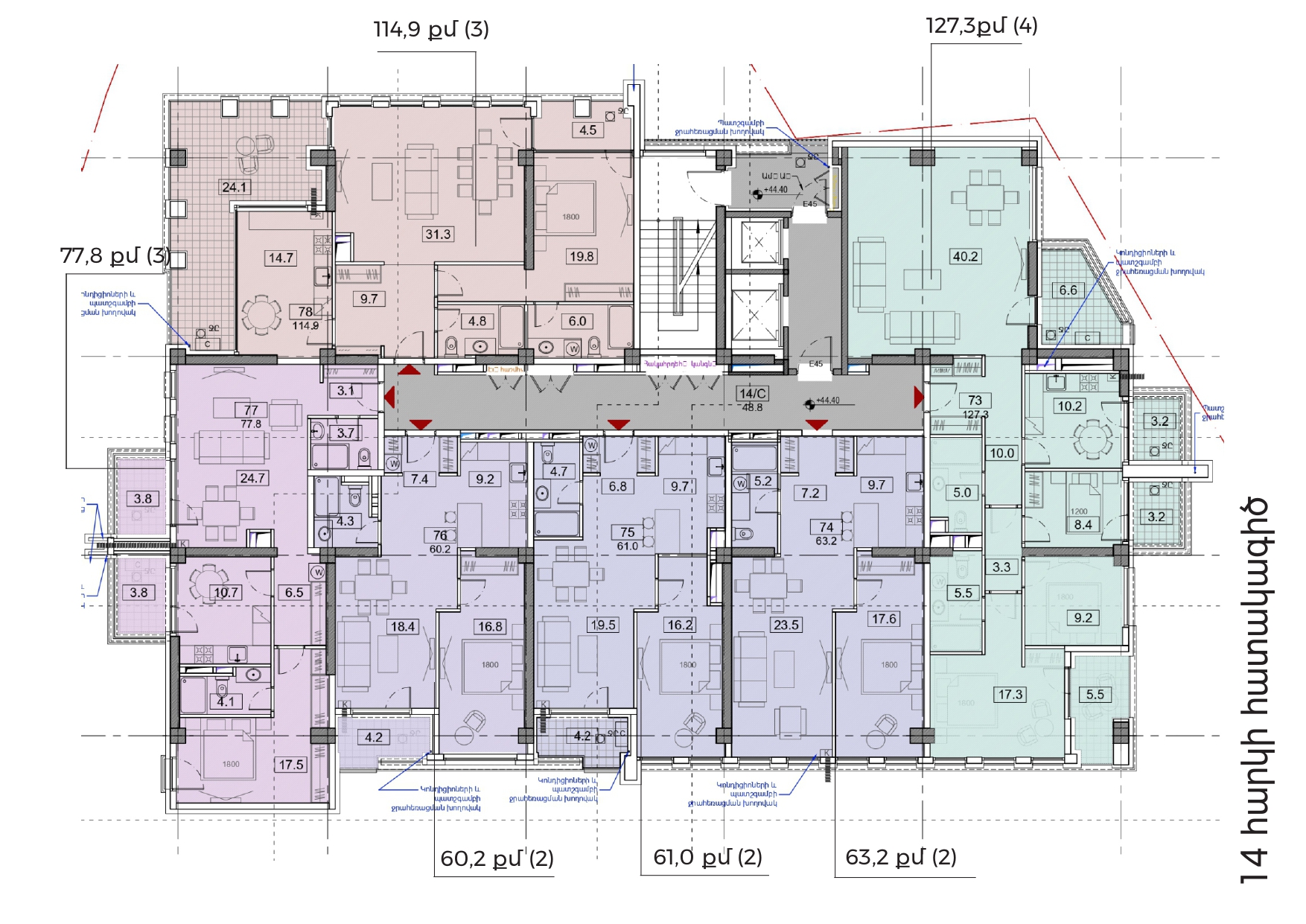
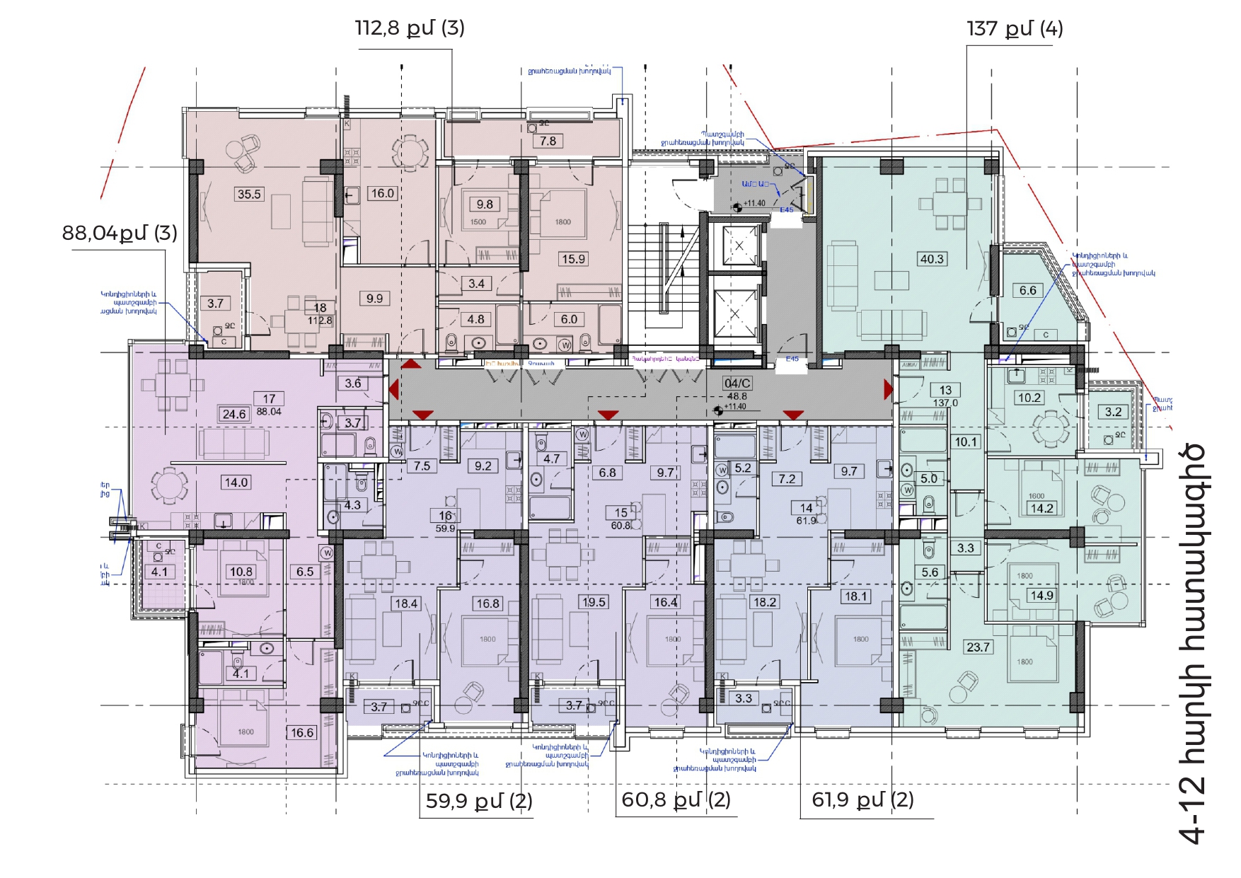
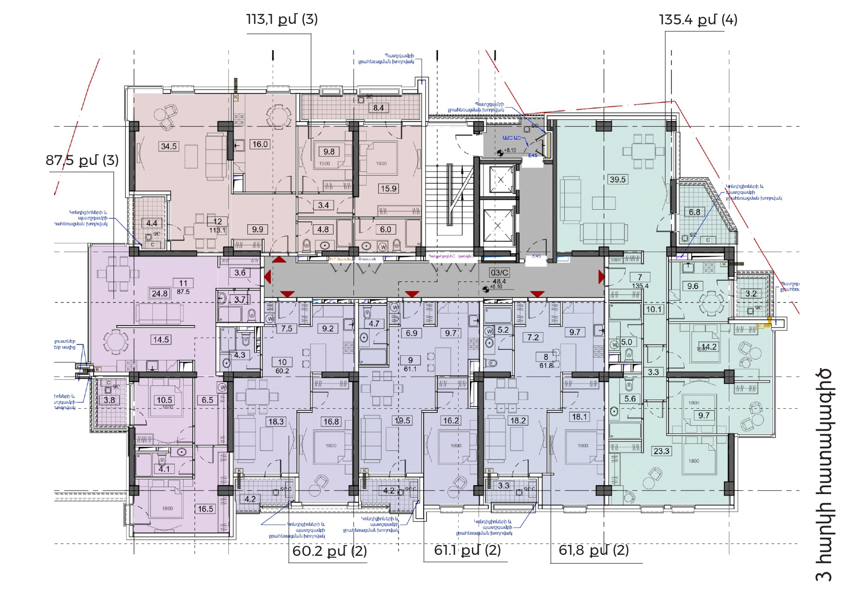
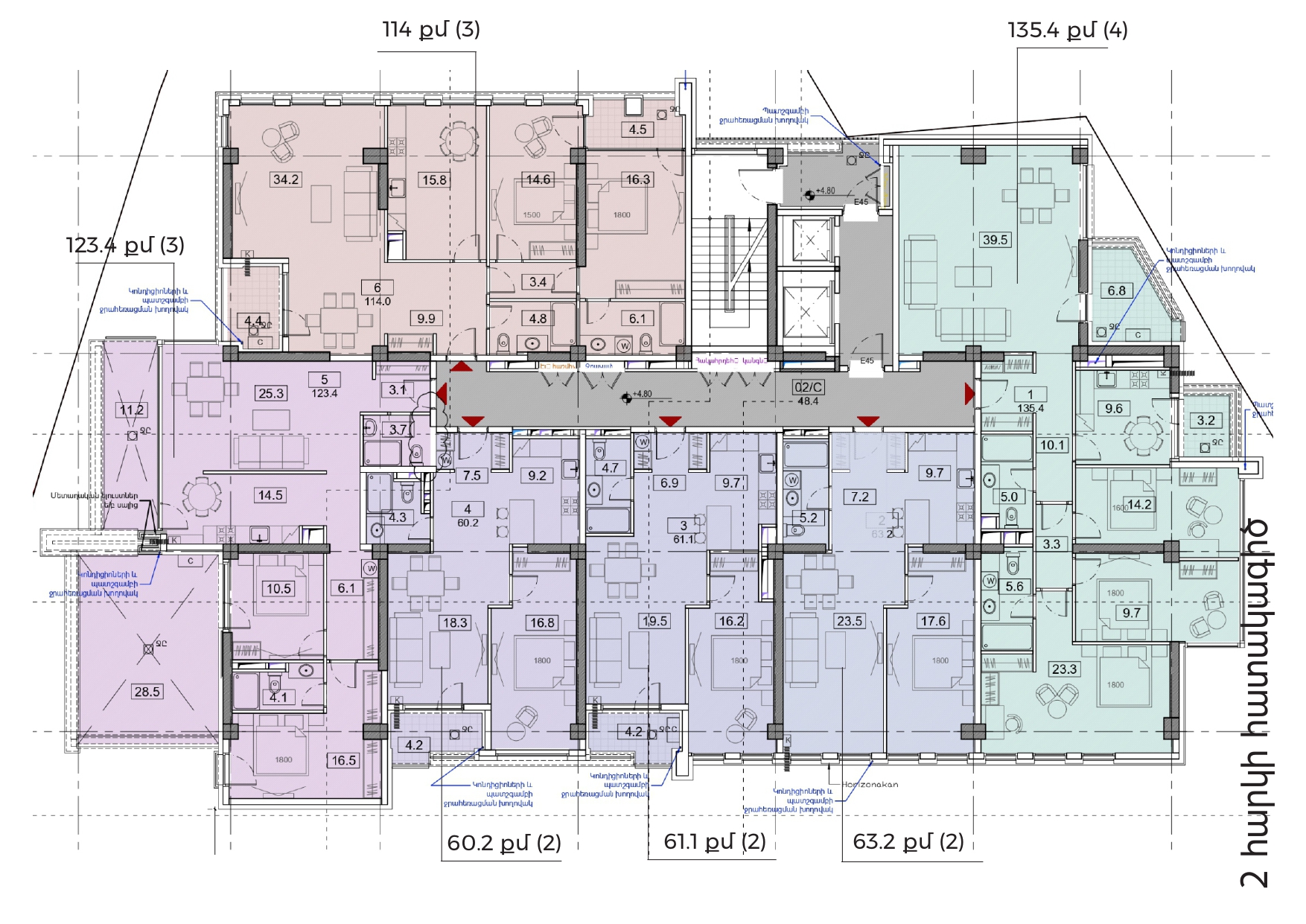
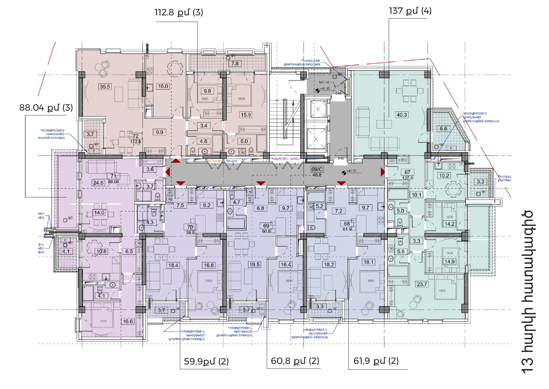
  • Շենքում առկա է մնացել 3-4 սենյականոց բնակարաններ՝ 77-137 քմ մակերեսներով

Ձեր նոր բնակարանը փնտրեք մայրաքաղաքի կենտրոնից 10 րոպե հեռավորությամբ, երեք վարչական շրջանների հանգույցում՝ Խուդյակովի փ․ Բուսաբանական այգուն հանդիպակաց։

Ժամանակակից համալիրն ունի 2 ստորգետնյա և 14 վերգետնյա հարկեր։ Առաջին հարկը տեղակայելու է հասարակական ենթակառուցվածքային ծառայությունների օբյեկտներ։

Կանաչ գոտիների առկայությունն անվիճելի առավելություն է հաղորդում բնակելի համալիրին։ Նվազեցնելով քաղաքային աղմուկի և օդի աղտոտվածության աստիճանը` բուսածածկ տարածքները բարելավում են թաղամասի ընդհանուր բնապահպանական իրավիճակը։ Այդ իսկ պատճառով Երևանի այս հատվածում առաջարկվող բնակարանները առավել պահանջված են և թանկարժեք։

Ձեր նոր բնակարանը փնտրեք Գայի պողոտայի սկզբնամասում՝ Բուսաբանական այգուն հանդիպակաց։ Կյանքը, աշխատանքը, հոգսերն ու ընտանեկան հանգիստը հավասարակշռող եզակի դիրքադրություն։ Զարգացած ենթակառուցվածքներ, խոշոր առևտրային կենտրոններ, կրթօջախներ և գերազանց տրանսպորտային հանգույցներ։ Օգտվեք մայրաքաղաքի երեք վարչական շրջանների խաչմերուկում գտնվելու առավելությունից։


ՏԻՊԱՅԻՆ ՆԱԽԱԳԾԵՐ